农村平房设计图大全

农村平房设计图大全相关图片

农村平房住宅设计图
500x286 - 29KB - JPEG

占地100平方农村三层带车库自建房设计图_别墅设计图纸,农村房屋设计图
750x508 - 28KB - PNG

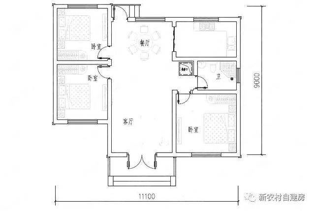
7套农村平房别墅,第3套最受欢迎,第6套只要
640x429 - 21KB - JPEG

造价25万农村437.25平独家独院平房设计图
627x421 - 92KB - JPEG

3套(新农村一层平房设计图)这3款图纸免费送你了!
640x615 - 101KB - JPEG

3款一层农村别墅平房, 120平150平180平,
640x534 - 37KB - JPEG

精选10套农村养老小平房,建一栋这样的
640x540 - 53KB - JPEG

求一份150平方农村平房设计图及效果图
414x402 - 30KB - JPEG

农村一排五件平房设计图的结果_百度图片
285x220 - 11KB - JPEG

8套一层农村平房别墅,花15万能在农村建个
600x408 - 25KB - JPEG

6款一层农村平房,带院子8万块就能开建,不
750x878 - 74KB - JPEG

三套农村平房设计效果图赏析
560x366 - 315KB - PNG

农村自建房一层平房需平面设计图,草图也
3508x2479 - 1449KB - JPEG

新农村平房户型,面宽16米,两种方案哪个好?
640x535 - 52KB - JPEG

东北农村平房设计图大全的结果_百度图片
465x300 - 21KB - JPEG

农村平房设计图大全相关问答

暂无相关问答

大家都在看

相关专题