钢筋符号识图

钢筋符号识图相关图片

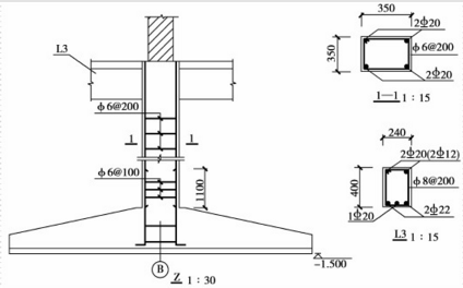
钢筋符号识图
300x424 - 9KB - GIF

螺纹钢筋符号识图的结果_百度图片
604x593 - 170KB - PNG

【江西长荣建设集团】建筑钢筋符号识多少?
632x797 - 45KB - PNG

钢筋符号识图的搜索结果_百度图片
500x344 - 32KB - JPEG

钢筋符号识图
800x600 - 151KB - GIF

钢筋图纸上烦人的符号看不懂?老师傅教你
640x402 - 47KB - JPEG

钢筋工识图技巧,想在工地上加薪的兄弟们
555x513 - 78KB - JPEG

钢筋符号识图的搜索结果_百度图片
584x300 - 22KB - JPEG

钢筋符号识图的结果_百度图片
614x300 - 26KB - JPEG

精心总结的建筑符号详解,从此识图毫无压力
623x521 - 62KB - JPEG

钢筋符号以及识图入门探析.doc
792x1120 - 93KB - GIF

钢筋符号识图的结果_百度图片
500x361 - 35KB - JPEG

电气识图(电气图形符号大全、符号表示含义)
1080x1558 - 189KB - JPEG

建筑识图符号详解
424x264 - 37KB - PNG

钢筋符号讲解以及识图入门
794x1123 - 263KB - PNG

钢筋符号识图相关问答

暂无相关问答

大家都在看

相关专题