扩大基础_扩大基础图片

扩大基础相关图片

桥梁扩大基础的施工工序,该知道都列在这里了
507x526 - 49KB - JPEG

u型桥台扩大基础
500x417 - 31KB - JPEG

桥梁扩大基础新帖排行-工程造价热点推荐
600x450 - 42KB - PNG

终于搞懂桥梁扩大基础各个施工细节,整理的太不容易了!
640x521 - 80KB - JPEG

主题帖排行路桥市政热点推荐
560x420 - 94KB - JPEG

桥梁扩大基础的结果_百度图片
500x377 - 34KB - JPEG

图文】扩大基础施工工序,这篇文章相当给力
640x433 - 31KB - JPEG

扩大基础施工工序
602x428 - 42KB - JPEG

桥梁扩大基础各种施工细节大全!_基坑
600x450 - 34KB - JPEG

完整版!2020二级建造师《市政实务》真题及答案解析
1024x826 - 445KB - PNG

扩展基础的一套
1024x1024 - 128KB - JPEG

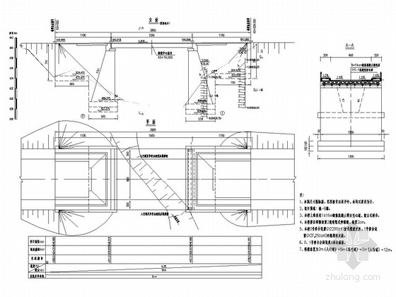
扩大基础桥墩台节点构造详图
610x432 - 46KB - JPEG

25扩展基础设计 共33页PPT资料
1080x810 - 71KB - JPEG

全屏显示课程章节
730x398 - 53KB - JPEG

单元5 浅基础工程PPT
1080x810 - 75KB - JPEG

扩大基础相关问答

简介:扩展基础是用钢筋混凝土建造的基础,称为扩展基础。扩展基础将上部结构传来的荷载,通过向侧边扩展成一定底

暂无相关问答

大家都在看

相关专题