
工业电泳废水处理工艺流程设计图纸
610x432 - 53KB - JPEG

石油开采工业废水处理
718x394 - 115KB - JPEG

重金属废水处理设计图纸 - 工业废水处理图纸
820x579 - 52KB - JPEG

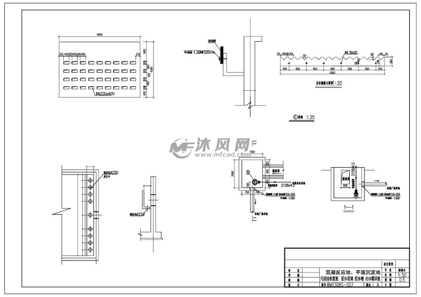
重金属废水处理设计图纸 - 工业废水处理图纸
820x579 - 56KB - JPEG

重庆污水治理,高盐废水治理,工业废水处理产品
249x350 - 18KB - JPEG

某医院日处理240方废水处理工艺设计图_cad图
610x432 - 30KB - JPEG

纸板生产废水处理工艺流程图设计图__工业生
1024x721 - 181KB - JPEG

哈尔滨某制药厂污水处理工程设计图 - 工业废水
453x306 - 31KB - PNG

《毕业设计:工业废水处理站设计(经典)》.doc 全
870x1229 - 46KB - PNG

粘胶纤维工业酸性废水物化处理工艺探索-水处
526x223 - 25KB - JPEG

新帖排行水处理施工图_给排水设计_给排水施
560x401 - 73KB - JPEG

工业废水处理_工艺流程图\/平面布置图_环保设
200x144 - 5KB - JPEG

含油污水工艺流程设计图纸 - 工业废水处理图纸
900x638 - 90KB - PNG

某制药废水处理工艺流程图 - 工业废水处理图纸
741x316 - 34KB - JPEG

某焦化废水处理初步设计图 - 工业废水处理图纸
617x286 - 75KB - JPEG
工业废水处理流程的选择,直接关系到建设费用和运行费用的多少、处理效果的好坏、占地面积的大小、管理上的方便与否等关键问题。因此,在进行废
工业污水处理流程 ziaogt|2018-06-29 |举报 工业企业主要分布在电子、塑胶、电镀、五 印刷及生活污水等以有机类污染物为主的废水是处理的重点。处理工艺流程:废水→调节
污水处理厂的工艺流程设计 jieferd|2014-03-03 |举报 专业文档 专业文档是百度文库认证用户/机构上传的专业性文档,文库VIP用户或购买专业文档下载特权礼包的其他会员用户
简介:工业废水是指工业生产过程中产生的废水、污水和废液,其中含有随水流失的工业生产用料、中间产物和产品以
河南-郑州——河南环源环保科技有限公司——污水处理设计领域:宾馆/新农村/餐饮/度假 本页面所展现的供应【唐山市】工业含油废水处理工艺流程、、含油废水处理工程信息
工业设计洛可可整合创. 工 业 废 水 处 理 设 计 pp564990252上传于2011-06-15 关 于 工 业 废 水 处 理 的 设 计 试读已经结束,如果需要继续阅读或下载,敬请购买 ¥0元 购买
中国供应商(免费提供山东工业污水处理工艺流程、山东工业污水处理工艺流程价格、山 主营产品: 环保设备 水处理设备 环保工程设计施工 环保设备安装 所在地:山东潍坊 双
该全套工艺施工图为含油废水处理施工图,工程完成后出水含油指标达到10mg/l的国家排放标准.内包括设计与施工说明,工艺流程图,油污水处理系统平面布置图 来源:网络 上传:m
工艺流程为:物化+生化+两级过滤。水洗废水、脱脂废水、表调磷化废水均单独收集进行预处理后,再汇入综合调节池进行生化处理。 工业电泳废水处理工艺流程设计图纸-图一
土木在线工业废水处理图分类,由广大工程行业专业工程师上传,拥有大量工业废水处理图资料供大家下载,需要工业废水处理图资料,请选择喜欢的内容下载;