
【图】请教如何选择地下停车位,谢谢!
700x525 - 70KB - JPEG

【图】帮忙看下地下车位的选择? 应该选哪个
623x283 - 21KB - JPEG

【图】本人住15栋,地下车位选哪个好,各位大侠
700x393 - 70KB - JPEG

【图】德国男子忘记停车地点 怎么选择地下车位
544x372 - 33KB - JPEG

【图】有地下车位的朋友推荐下应该选哪个车位
700x523 - 73KB - JPEG

有地下固定车位的帮看看,我选这个车位怎么样
400x286 - 29KB - JPEG

【图】万能的小伙伴们地下车位怎么选择
700x525 - 45KB - JPEG

地下车位选择请教!_标致307论坛
400x225 - 8KB - JPEG

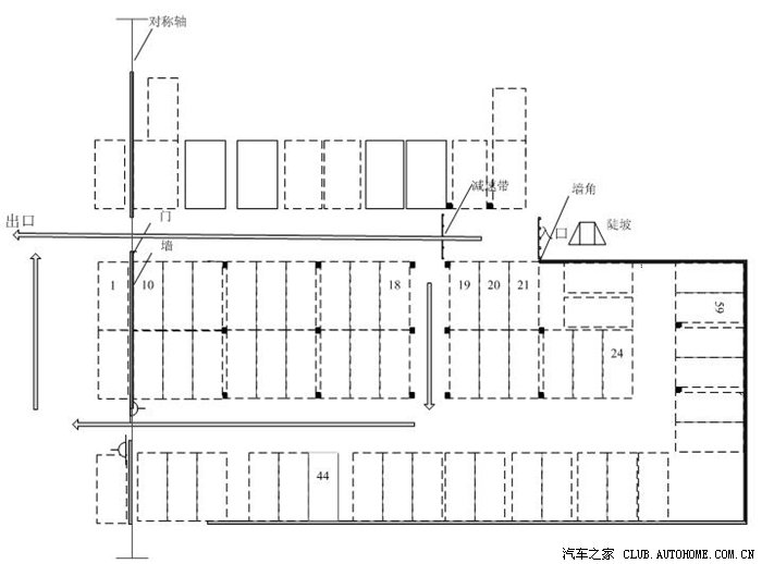
【图】帮忙选地下车位,为什么这么多人选44号
700x518 - 52KB - JPEG

选地下停车位,不妨看看龙湖·曲江畔的几个建
564x416 - 153KB - PNG

【图】万能的小伙伴们地下车位怎么选择
700x525 - 49KB - JPEG

【图】地下车位该如何选择呢? 附图。 请帮忙
700x462 - 71KB - JPEG

请大家帮助参考选哪个地下车位比较好~~!_辽宁
760x1013 - 149KB - JPEG

【地下停车位怎样选图解】- 驾考宝典
300x300 - 24KB - JPEG

选地下停车位,不妨看看龙湖·曲江畔的几个建
500x370 - 44KB - JPEG
如何选择地下车位,如今,汽车几乎成为每家每户的标配,停车成为人们头疼的事情,很多的有车族都会为心爱的汽车选购一个停车位,停车位就跟房子一
对于地下车位来说,还有个特点就是有柱子,柱子旁边的车位,一般都是会宽于这个标准车 下面,我们来具体来看看怎么选车位: 入口车位不要选 该车位
车位右手面有柱子(或墙) 4 、三车位同上 5 、不要靠近转弯处就行,本人的车在地下停 左右门都又被碰瘪的风险) 10 、车库柱子在出口之间的不要选(比如出口需要向左,柱子
对于地下车位来说,还有个特点就是有柱子,柱子旁边的车位,一般都是会宽于这个标准车 下面,我们来具体来看看怎么选车位: 入口车位不要选 该车位
小区地下车库怎么选车位?随着经济的发展,马路上的车辆也越来越多,也就间接影响了停车行业。因此,不论是在自家楼盘还是工作的地方,停车位的需
购买地下车位挑选的方法: 1 、要近电梯口 ; 2 、要单独; 3 、双车位右手面要有柱子(或墙); 4 、三车位同上; 5 、不要靠近转弯处,地下停车场视线不好,尽量靠中间; 6 、最好选择靠一侧的,不选择靠管道、消防器材或者电控箱近的; 7 、首选边库,车库出入口和车之间没柱子的 ; 8 、出入口处的车库不要(出入会车有出意外的风险); 9、中间库不要(两边都有车怕开不门,左右门都又被碰瘪的风险); 10、车库柱子在出口之间的不要选(比如出口需要向左,柱子在左边) 11、如果车库出口需要向左就选边库柱子在右手的即可。
现在私家车基本是每家的标准配置,购房者在买房的同时也会为自己的爱车挑选一个地下车位,那么很多人就开始头疼地下车位怎么选了。地下车位怎么选其实是有技巧的,大家掌握了选车位的技巧就不能选出称心如意的车位。 一、宽度、高度、长度影响很大 1。最好选择两个柱子之间的车位,一般这个位置的车位都是特别宽的,两边开门都不影响旁边的车。 2。其次选择,两个柱子间的两个车位,往往由于柱子的间距比较大,这种车位经常比标准的宽,起码有一边不影响他人的车。 3。在并排的多个车位中选择靠柱子的,这样有一边的门打开,可以不影响其他车辆,同时考虑自己是倒着进去的,还是直接开进去,倒出来的。选择自己习惯驾驶的驾驶室方向的位置空为好。 4。另外,还要注意地下车位的高度,要注意地下车位顶上,是否有管线,最好选高度高的。有的车位后面还有管线、阀门等设施,会导致车位变短,一般也不要选。 5。还有一种在墙面之间形成的车位,这种车位空间比较固定,并不方便入库和出库。 6。除了关注车位的宽度,车道的宽度也要注意,有的车道两边都有车位,有的只有一侧有车位,在宽度相似的情况下,要选择只有一侧有车位的,将来车进车出干扰较少。 二、远离
车位是一定要抢的 不过你先别忙着抢 这期小编来告诉你 小编就教微友们怎么选地下车 购买地下车位时,要注意存车、取车、爱车的保护等方面,根据自己的经济实力以及自己
地下车位如何选择?地下车位如何选择.地下车位如何选择展开卡卡,我不建议你买车位!我帮你算一笔帐:14万一个车位,使用四十年,算上四十年的利息,一年的使用费用是将近