
铝板幕墙构造及细部设计详图图集
449x582 - 55KB - JPEG

铝板幕墙节点构造图集
502x406 - 21KB - JPEG

铝板标准图集 - cad幕墙节点施工图纸下载,免费
786x559 - 38KB - PNG
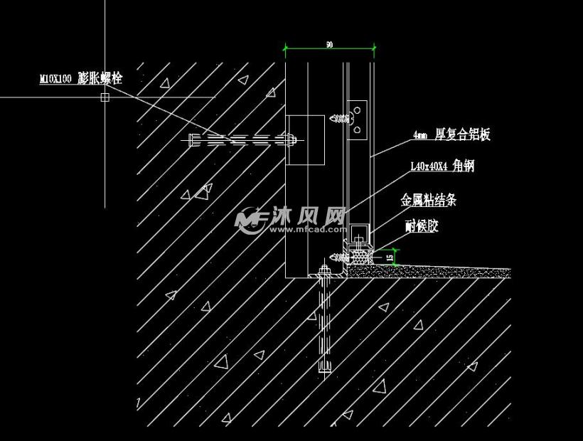
![[金庐软件园]某大厦铝板幕墙节点图集](http://down2.zhulong.com/tech/new_miniature/3310/2007727134091431_4.jpg)
[金庐软件园]某大厦铝板幕墙节点图集
560x253 - 50KB - JPEG

铝板幕墙横剖节点(一)
560x402 - 25KB - JPEG

铝板幕墙节点详图(一)
560x399 - 32KB - JPEG

铝板幕墙施工图集 - cad幕墙节点施工图纸下载
820x620 - 57KB - JPEG

铝板标准图集 - cad幕墙节点施工图纸下载,免费
622x437 - 33KB - PNG

铝板幕墙|莱特镁展览|单层铝板幕墙_天助网
700x436 - 56KB - JPEG
![[金庐软件园]某大厦铝板幕墙节点图集](http://down2.zhulong.com/tech/new_miniature/3310/2007727134091431_2.jpg)
[金庐软件园]某大厦铝板幕墙节点图集
560x398 - 60KB - JPEG

塑铝板幕墙楼顶纵剖节点图
460x459 - 46KB - JPEG

铝板标准图集 - cad幕墙节点施工图纸下载,免费
703x501 - 46KB - PNG

铝板标准图集 - cad幕墙节点施工图纸下载,免费
779x553 - 21KB - PNG

铝板幕墙施工图集 - cad幕墙节点施工图纸下载
808x582 - 59KB - JPEG
![[北京]玻璃幕墙,铝板幕墙](http://down1.zhulong.com/tech/new_miniature/5015/201151210172465_3.jpg)
[北京]玻璃幕墙,铝板幕墙
416x413 - 29KB - JPEG
本人整理各类铝板幕墙标准施工图集,内含施工详图及工艺说明。图纸内容详实,节点绘制清楚,符合设计规范,
铝板幕墙施工图 铝板幕墙施工 铝板幕墙 穿孔铝板幕墙施工图 铝板幕墙图纸 铝板铝板幕墙 幕墙 图集 铝板
铝板幕墙图集 铝板幕墙图集咨询电话:0510-85818880手机:18900636969联系人:徐先生。公司网站
经典的铝板幕墙结构连接节点详细施工图属于土木在线幕墙设计分类,幕墙设计包含大量与幕墙设计相关图纸,
在线互动式文档分享平台,在这里,您可以和千万网友分享自己手中的文档,全文阅读其他用户的文档,同时,也
幕墙铝板幕墙之后质感独特,色泽丰富、持久,而且外观形状可以多样化,并能与玻璃幕墙材料、石材幕墙材料
了解更多铝板幕墙安装方法图知识、铝板幕墙安装方法图资讯及下载铝板幕墙安装方法图相关精品资料,
[金庐软件园]某大厦铝板幕墙节点图集 通用铝板幕墙节点详图。该图纸为某地区大厦铝板幕墙节点图设计,图纸