
《02D501-2等电位联结安装(建筑标准图集)-电
800x800 - 80KB - JPEG

02d501-2+等电位联结安装02d501-2
584x406 - 34KB - JPEG

02D501-2:等电位联结安装 - 国家建筑标准设计
1000x697 - 61KB - PNG

shn-5012d-1a_casio卡西欧shn-5012d-1a_shn
500x499 - 50KB - JPEG

辽2002d501建筑防雷、接地设计与安装图集图
555x417 - 182KB - JPEG

D501-1~4:防雷与接地安装(2003年合订本)(含9
280x200 - 23KB - JPEG

02D501-2等电位联结安装高清电子版图集(02d
620x418 - 147KB - PNG

《02D501-2等电位联结安装(建筑标准图集)-电
350x350 - 16KB - JPEG

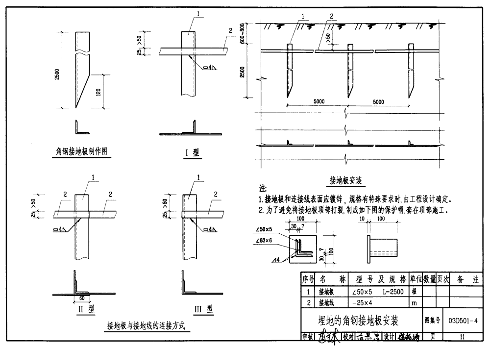
03D501-4:接地装置安装- 国家建筑标准设计网
1000x710 - 37KB - PNG

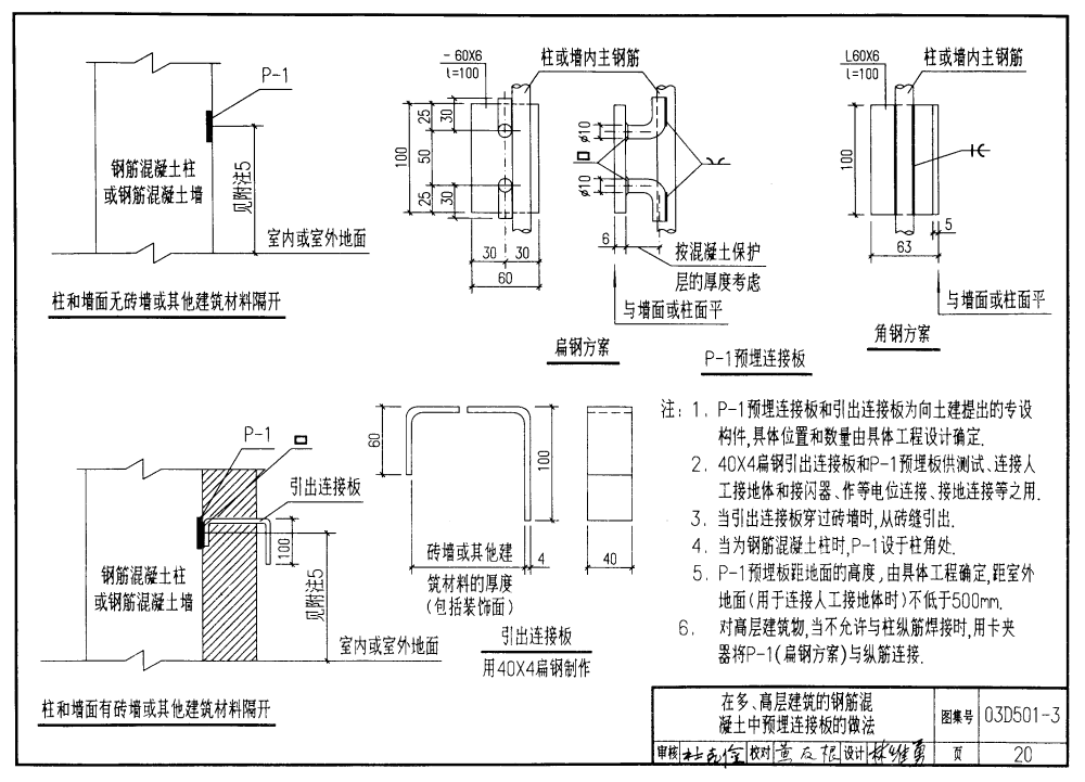
03D501-3:利用建筑物金属体做防雷及接地装置
1000x721 - 49KB - PNG

某住宅小区工程电气施工组织设计_secret.doc
993x1404 - 134KB - PNG

03D501-3:利用建筑物金属体做防雷及接地装置
1000x721 - 63KB - PNG

农场保性安居工程基础设施配套供热工程电气施
141x200 - 13KB - PNG

03D501-4:接地装置安装 - 国家建筑标准设计网
1000x710 - 41KB - PNG

03D501-3:利用建筑物金属体做防雷及接地装置
1000x721 - 62KB - PNG
修编过程:本图集是对原97SD567的修编,修编后图集号改为02D501-2。本图集适用于一般工业与民用建筑物电气
【标准图集】《02D501-2 等电位联结安装》,但是感觉图中的文字和前面说明的文字稍有不同,有谁
接地做法看电气设计图纸,等电位箱做法见国标图集《等电位联结安装》(02D501-2) 你好!卫生间局部等电位
在线互动式文档分享平台,在这里,您可以和千万网友分享自己手中的文档,全文阅读其他用户的文档,同时,也
绿色先锋官方下载为您提供02D501-2等电位联结安装高清电子版图集免费下载02D501-2等电位联结安装图集适用于
总等电位联结系统图示例 电源进线、信号进线等电位联结示意图 总等电位联结平面图示例(一处电源进线) 总
02D501-2等电位联结安装高清电子版图集,02D501-2等电位联结安装图集适用于电气装置防间接接触电击和防电磁
.doc 文档页数:47页 文档大小:3.06M 文档热度:文档分类:通信/电子-电子电气自动化 图集 电位 联结 资料
广联达服务新干线坚持以用户为中心,为此整合全国资源与地区个性化需求。是造价从业者专业答疑,线上/下